
PROJECT INFORMATION
AREA: 广东 佛山
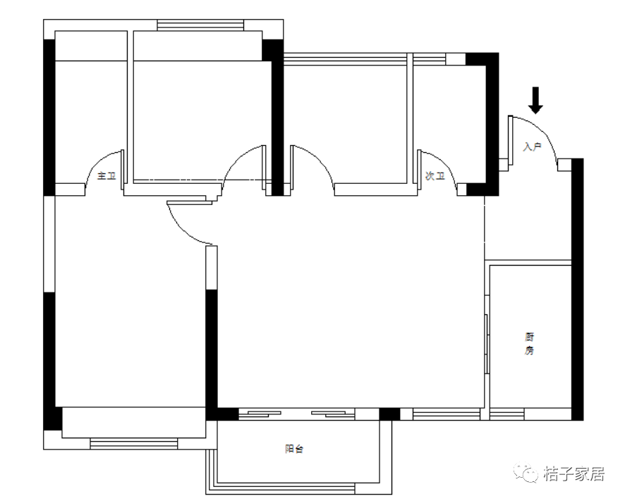
SQUARE: 89平方
DESIGN : @桔子家居
DESIGNER: 王建华
EDITOR: Ada
生活在都市的年轻人,愈来愈注重生活感,仪式感意味趣味性,他们在潜移默化中达到共生的形态,于是一种新的居住生活模式悄然兴起。


简约,不是平淡和单调,摒弃传统的繁琐与无序,用简洁的色彩打造有序不紊的生活空间,用随性不拘束的表现手法重构摩登而温和的空间。

岩板岛台+悬浮餐桌一体设计,让空间更加通透明亮。瞬间拥有豪宅的既视感,高级感拉满。

金属框与玻璃门在其间形成通透,轻奢的高级感,柔和的灯光将质感充分调和。赋予用餐空间更舒适惬意的品质之享。

功能齐全的餐边柜,可以作为家里的第二个厨房,备餐、西餐、轻食都可以在餐边柜上执行,蒸烤箱设计在里厨房最近的位置。岛台衔接中厨与西厨的使用动线,烧水壶 榨汁机辅食机等等均可以在餐边柜执行,给生活带来了极大的便利。


沙发后面有个“靠山”,不管从风水学的角度讲还是从心里角度讲都是有必要的,1.2米高的吧台既不档视线又能起到一定的隔断作用,白色大理石纹台面,营造出精致典雅的氛围感。



有了阳光,空气与向往,日子才会历久弥新。敞开式的格局,形成一个休闲交流空间,赋予日常不同的体验方式,邀请三五好友小聚,一起聊天,看电影,喝茶 读书,开启周末快乐模式。


阳光房做成书房,休息学习两不误。在温润如初的日子里,翻开昨日折下痕迹的书本,泡一杯浓郁香淳的咖啡,把生活过成你想要的样子。

次卧设计榻榻米,空间利用率高又很好的满足收纳需求,抽屉底部抬高2公分,内嵌灯带设计,带来悬浮的既视感,收纳与颜值并存,让空间充满了随性,温暖,活泼的意境。

主卧进深只有3米,要摆下一排大衣柜保证过道和使用空间,那就得要压缩床屏尺寸,用一字型软包取代,床尾衣柜做成巴士移门效果,妆台延伸飘窗,这样连贯和谐,台上带灯光金属层板,尽显简洁高级。


壁挂式金属灯光层板,打造富有韵律的空间美感,高级上档次。




ORANGE DESIGN
品质生活的研究者
